在各位看这篇文章前,小编先申明,如果您不是准备购房/租房作为常住需求,也不是购房作为自住用途的,基本您也别往下看了,因为一来,每个个体需求不同,可能其中一些观点未必是所有人都能接受;二来,单纯投资角度购房,中国人对房产的各种要求其实并不完全适用于老外;三来,仅做地址使用的租赁/购房您不必考虑那么多因素,从而扰乱了您的思绪。

好了,那么接下来,我们排排坐,开始了解那些“坑”
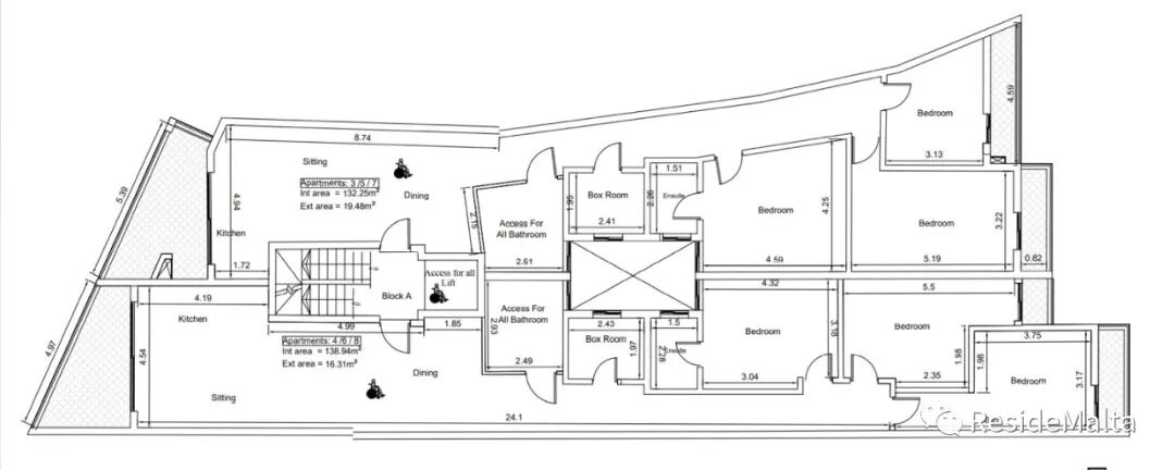
一号坑:长走廊户型
马耳他因为国土面积小,西方产权私有化,街面及城市规划问题,于是出现很多长走廊型布局房产。我随便找一个房型图给您看一下这种布局。

看一下这个平面图下面的那套,这种布局在马耳他来说属于公寓经典户型。入门后是开放式的厨房/客厅,一条长走廊延伸到所有的卧室可卫生间。如这套房型的走廊,去除客厅部分,纯走廊长达13.07米。小编见过马耳他最长的房内走廊达到将近35米,而且走廊通常宽度很小,一般都在120cm, 甚至更窄。
这种布局的缺点是什么呢,一来,长走廊一般没有窗,所有卧室门一关,整个走廊采光,通风就会非常差,极端情况下,整面墙和天花每年得至少刷一次,不然全是霉点;二来,得房率不高,实用面积浪费较多;三来,电费增加,极端情况下,朝向差或楼层低的,即使把卧室门开着,白天走廊里也得开着灯。
二号坑:建筑材质
马耳他的墙体建筑材质大体上分成两种,石灰岩石以及空心砖

这种黄黄的石头就是石灰岩石,这种石头材质坚硬,用该种建材建造的房屋冬暖夏凉,相对坚固。建造时,石头与石头间的接缝用的是同种石材磨成的粉,强度比较高。三只小猪的故事还记得吗?哪种房子最坚固?

这种是空心砖,大部分马耳他新造建筑物用的都是空心砖,当然也分质量好坏,而且马耳他的一些小型开发商的建筑质量,小编真的不敢恭维。
小编有个朋友,租的房子从客厅开始到走廊墙上一整条整齐的水印和霉斑,一看就是与邻墙的接缝出了问题,水沿着墙体直接渗进来。遇到这种的,基本你就哭吧。
所以选择房产的时候看清楚建材,选择优质的房源,不要只挑便宜货。
三号坑:开放式厨房+无通风管脱排油烟机+附近无窗
马耳他房产多数是开放式厨房/客厅/餐厅布局,这种房型中的厨房是传统中国家庭不太常见的布局。这里没有贬义,因为这是中餐和西餐制作方式不同导致的格局差异。我们来看图。


如平面图和照片所示,这种情况下,厨房在开放式空间的无窗角落,脱排油烟机又是没有通风管通向屋外的,如果您的做菜风格是重油热炒,那么对于您的家庭来说,这种厨房布局可能是灾难性的。油烟排不出去,全都黏在周围墙壁上。
四号坑:加装空调
在马耳他生活,除非您不怕热,或者有小部分冬暖夏凉的房型,一般中国家庭移居后,每个房间最好都能安装空调。但是,似乎马耳他人和外国人似乎都不怕热,于是很多马耳他房产都是不配空调的,或者只有客厅/主卧有空调。于是,我们开始加装空调。问题来了。
马耳他的空调安装要求没有明管,管路必须走墙内。小编家里正好换空调,经历了那么一波操作。还好当时前任房东管路布局还算简单,小编也就开了一个小口子,家里已经像战场。如果遇到管路复杂的,您家的墙估计保不住。


因此,加装个空调,您得有个开战的心理准备
。
另外室外机不得挂墙,一般也不得放置于影响外立面美观的前阳台。
所以挂个室外机,管线布局可能是很长的。具体在哪些区域可以挂室外机,购房合同中会有表述。若是租房的话,我劝您尽量就别自己搞了,前期和中介说清楚,避免后期麻烦。
五号坑:纱门纱窗
马耳他夏天蚊子和苍蝇还是挺恼人的,蚊子还有其它法子,苍蝇您只能天天用电蚊拍噼里啪啦一阵乱抽了。所以房子有没有安装纱门窗就是一个您要考虑的点了。

马耳他有些窗门框结构关系,尤其是一些老房子,木质门窗,很难或基本没法安装固定式纱门窗,我建议您国内带简易磁吸式窗纱,门纱。这边按纱窗,性价比真是不敢恭维。
六号坑:楼顶水箱及增压泵
之前曾经聊过马耳他的水系统,今天借这个机会更深入地跟大家分享一下。
马耳他的房产几乎用的都是两路供水系统:
一路是政府水管直接供水,这路水一般直供厨房,水压在1-1.5 bar。
另一路水由政府供水管路泵自家接楼顶水箱,并由楼顶水箱供至单元内的卫生间,水压则会比较低(根据楼层不同,楼层越高,水压越低;楼层越低,水压越高)以小编家里为例,5层公寓楼的3楼,正常水压0.6-0.7 bar。
这样的设计目的有两个:一个是为了降低卫生间的水压,避免公寓楼出现强压后导致水管爆裂;二是为了让每户家庭在停水时,水箱有足够量的余水供给生活用,避免完全断水。

除了一些大型SDA项目以外,大多公寓楼楼顶水箱就是照片中这样的情况,每家一个水箱。
由于顶楼水箱自流压力不够,尤其是顶楼和顶楼下的两个楼层,导致需要加装增压泵来确保正常使用。增压泵装配在户外,又频繁启停,其使用寿命一般在3-4年。加了增压泵后,电热水器等设备也会因为这个因素而降低寿命。万一断个电,或者增压泵坏了,估计有些家庭洗个澡都困难。
因此,小编建议在租房或买房前,先看一下户内淋浴房和洗手池的正常水压,确定后续有没有要加装增压泵的需求。
七号坑:晾晒衣物
和国内一样,不是每套房都能有个能晾晒衣物的阳台或院子,绝大部分家庭就只能在屋内用烘干机或平铺式晾衣架解决问题了。

如果您是和小编一样喜欢衣服和被子上有太阳的味道的话,您得期望您的房能有个能晾晒衣物的大阳台。最主要的,别指望您有个阳台就能晾晒,前阳台在马耳他通常是不能悬挂晾晒的。
看着比兵马俑坑还多的坑,不用害怕,因为怕是没用的,多问多听多看,毕竟,不同的国度,不同的生活方式,不同的背景阅历都会对您的判断和选择造成影响。但凡是小编知道的坑,一定会帮您避。
线上博彩在部分国家属违法行为,本文以产业分析为目的内容仅供参考,文章内相关赌博行为一律与本站无关。
发布者:马耳他华人网,转转请注明出处:https://www.234yule.com/8074.html



